0

Locmariaquer - Accès direct sur le Golfe du Morbihan

Locmariaquer (56740)
Réf : 4126C

MOCQUARD Immobilier vous propose, dans le coeur du bourg, cette maison en pierres "les pieds dans l'eau".

Elle vous seduira par sa vue époustouflante et son charme.

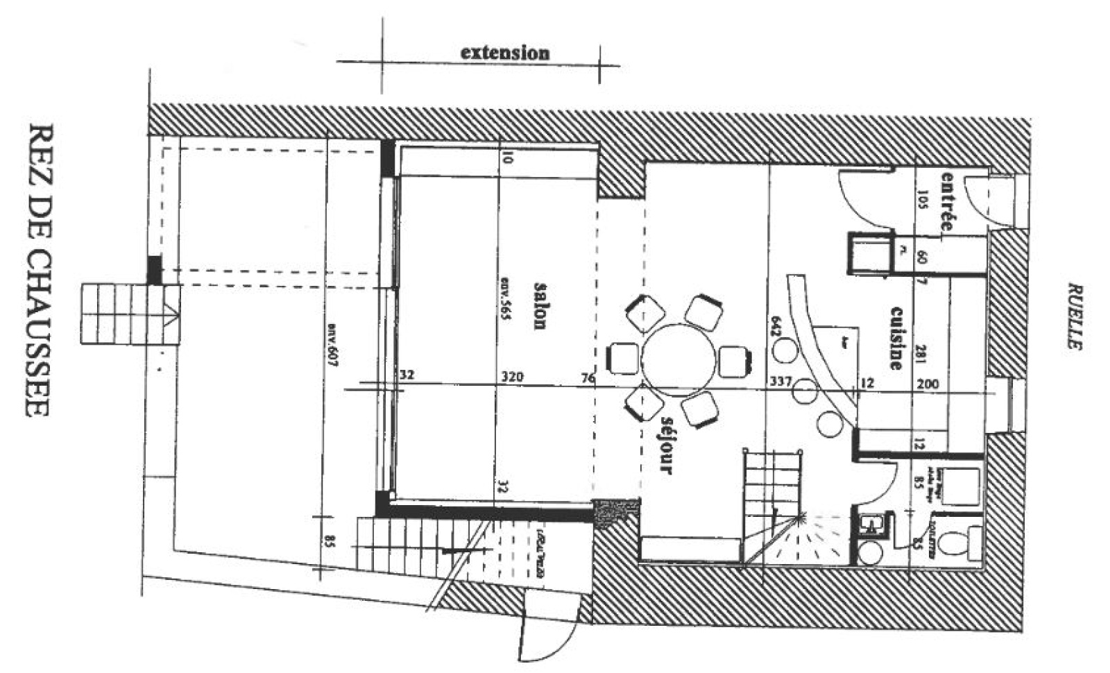
Elle se compose d'une entrée, buanderie, cuisine ouverte sur séjour/salondonnant sur une première terrasse d'environ 20m². Accès direct à l'eau.

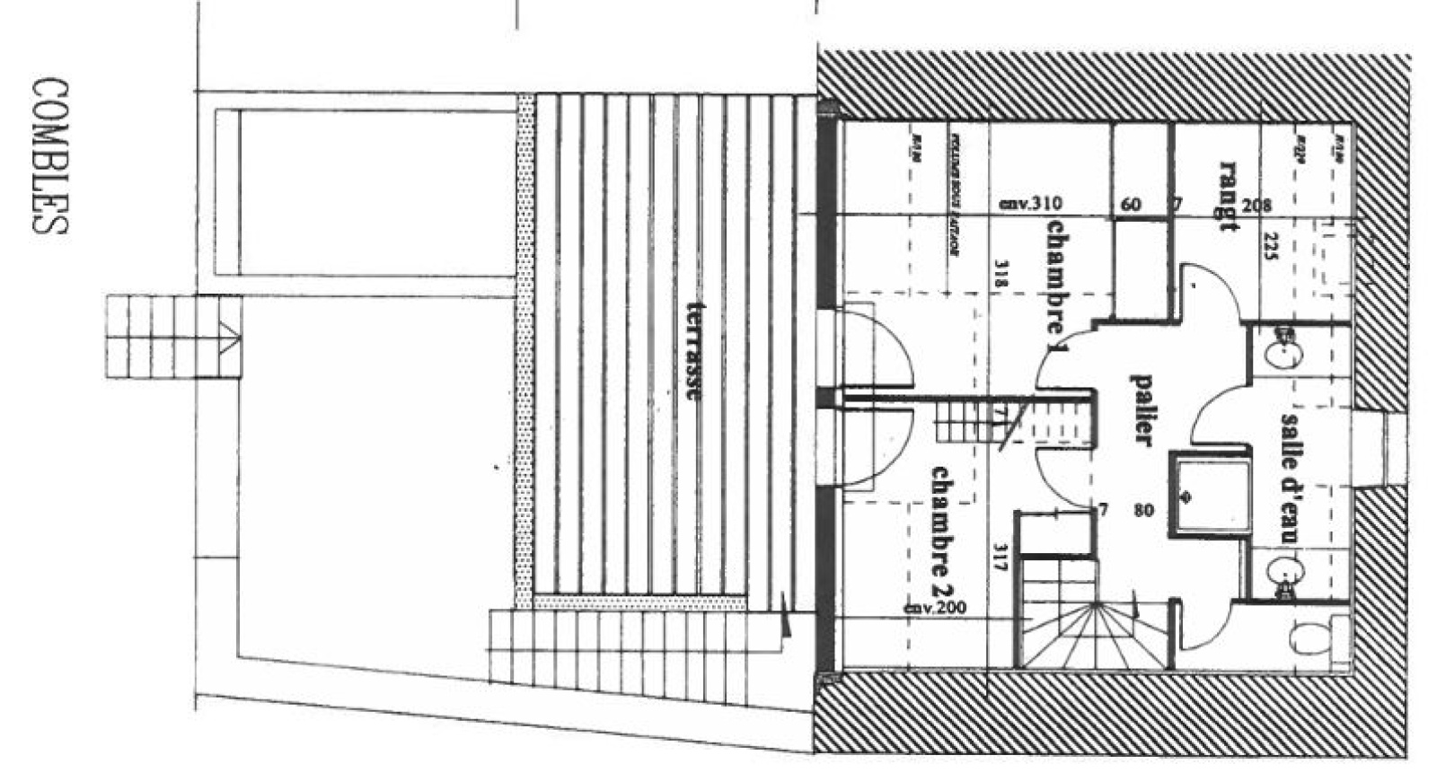
A l'étage: une chambre cabine, 2 salles de douche, deux chambres par lesquelles vous accédez à une deuxième terrasse d'environ 25m² surplombant le Golfe du Morbihan.

Appenti extérieur permettant de stocker des vélos ou autre.

Coup de coeur assuré: aucun vis à vis, les avantages du coeur de bourg tout en savourant le calme et la vue dégagée!

Prix du bien
Pièce(s) 4
Chambre(s) 3

Caractéristiques du bien

Caractéristiques Valeurs
Code postal 56740
Surface habitable (m²) 81 m²
surface terrain 100 m²
Nombre de chambre(s) 3
Nombre de pièces 4
Nombre de niveaux 3
Nb de salle d'eau 1
Cuisine Américaine
Type de cuisine Equipée
Mode de chauffage Electrique
Type de chauffage Radiateur
Format de chauffage Individuel
Terrasse OUI
Exposition Est

Infos financières

Caractéristiques Valeurs
Taxe foncière annuelle 554 €
Ces biens peuvent vous intéresser